DATA/FECHA: 2025-2026
BEZEROA/CLIENTE: Getxoko Udala/Ayuntamiento de Getxo
KOKAPENA/UBICACIÓN: Getxo (Bizkaia)
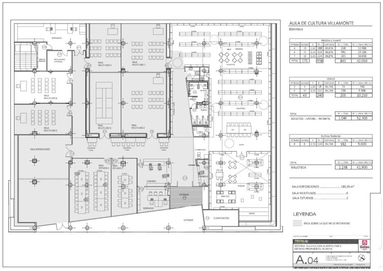
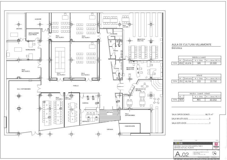
El Aula de Cultura de Algorta se ubica en los bajos de un grupo residencial que data del año 1961. Ha sido objeto de una reforma interior de parte de sus espacios recientemente en una fase anterior. La propuesta de actuación en esta segunda fase se centra en los espacios interiores relacionados con la biblioteca y en una renovación completa de la fachada exterior y su envolvente, concretamente:
Se renuevan los espacios de biblioteca infantil, juvenil y de adultos.
Se renuevan los baños, tanto masculino como femenino y se incorpora un nuevo aseo adaptado unisex independiente.
Se renuevan las instalaciones de climatización, electricidad e iluminación de todos los espacios reformados.
Se reubica la sala de reprografía generando una nueva sala multiusos y se acondiciona una zona de archivo.
Se acondiciona un nuevo office para el personal y un cuarto de limpieza.
Con respecto a la fachada, se propone un nuevo recubrimiento a base de listones verticales de composite imitación madera de nulo mantenimiento y fácil instalación aprovechando los tableros fenólicos existentes como soporte base.
También se renueva todo el sistema de persianas motorizadas exteriores, así como el falso techo de bandejas de aluminio del zaguán que es sustituido por uno de lamas de madera dando continuidad al nuevo revestimiento de la fachada.




